Szczegóły nieruchomości
17A Generała Stanisława Maczka, Łańcut Podkarpackie 37-100
2,300 PLNOpis
Oferta 47, Łańcut
Mieszkania - wynajmę - Łańcut Podkarpackie
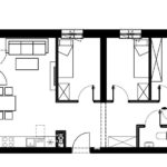
Oferujemy do wynajęcia nowe komfortowe mieszkanie o powierzchni 65 m2 położone w Łańcucie, cztery pokoje, aneks kuchenny, łazienka, mieszkanie umeblowane i wyposażone.
Mieszkanie położone jest w nowym monitorowanym bloku z windą, mieszkanie posiada pełne opomiarowanie.
Mieszkanie z dużym balkonem, klimatyzacją, do mieszkania przynależy komórka lokatorska oraz miejsce postojowe garażu pod blokiem.
Ogrzewanie miejskie zawiera się w czynszu administracyjnym.
Atrakcyjna lokalizacja oś. Gen. Maczka 17A, pełne zaplecze typu szkoła, przedszkole, sklepy, Lidl, biedronka, przystanki, kościół, wszystko w zasięgu pieszym.
Cena : 2 300 zł/mc + czynsz administracyjny 650 zł + prąd, woda, śmieci,
Charakterystyka nieruchomości
- Mieszkania - wynajmę
- 4 pokój
- 1 łazienka
- 2 Miejsca parkingowe
- Klimatyzacja
- Powierzchnia użytkowa 65 m²
- Nowe budownictwo
- 2 Garaż
- Brama garażowa z pilotem
- Zmywarka
- Szafy w zabudowie
- Panele
- Domofon
- Balkon
- Piętro
- Wentylacja
- System grzewczy
- System klimatyzacji

















